板施工图中如何在某一部分区域布置双层双向通长钢筋?
楼主:huangcuixiang
提问时间:2022-12-05 11:03:52
回答:1
官方回答:1
阅读次数:2131
收藏
1条回答
- 默认排序 |
- 点赞数 |
- 评论数 |
- 时间
-
官方
已采纳
A:在绘制楼板施工图时,当需要在某一区域布置双层双向通长钢筋时,可用“区域布筋”的功能绘制,区域布筋支持“板面钢筋”和“板底钢筋”的绘制。选取所需板块,程序会统计出所选板块的配筋信息,供用户选择要布置得钢筋规格(也可交互输入)、或者可选择按区域的最大值配筋量布置。
操作步骤是必须先要执行【计算】、然后再执行【区域钢筋】命令,按照对话框中1设钢筋信息、2设区域范围、3设钢筋放置角度、4布筋选用四个步骤布置。命令行提示选择区域内楼板,在选择的过程中会有动态的选择结果粉红色显示如下图,动态提示选择布置钢筋的位置,确定钢筋位置后,绿色线条绘制钢筋范围。
图 区域钢筋
区域布筋的效果如下图所示,板底和板顶的水平和垂直方向都布置了通长钢筋。
图 实现双层双向通长钢筋
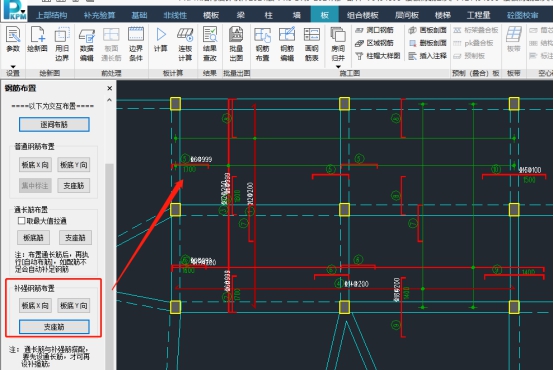
执行【钢筋布置】命令后,在弹出的对话框中,执行【补强钢筋布置】,对配筋面积不足的支座或板底实现自动补强。对于不需要布置补强钢筋的楼板支座等位置,程序也会绘制钢筋并用6@999的表示来提示用户。
图 补强钢筋:对配筋面积不足自动补强
赞(0) 评论(0)2022-12-05 11:06:09
QQ好友
新浪微博
微信扫一扫

